Legacy Project – Progress in August
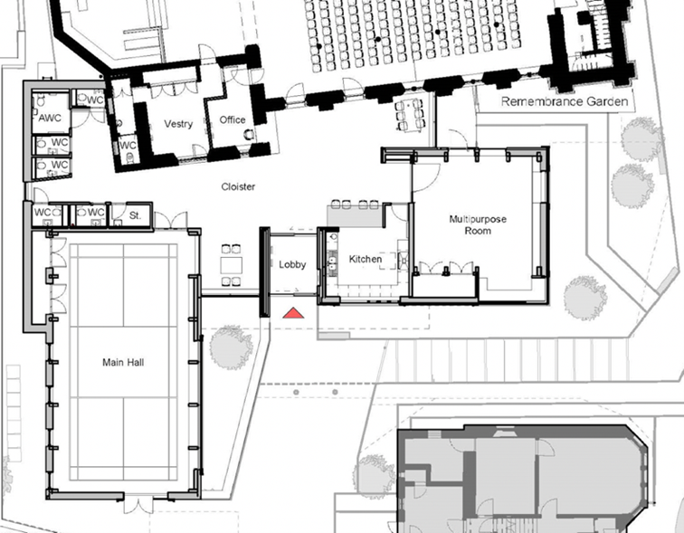
We are now approaching the halfway point in the construction of our Annexe and with it, our ability to embrace all the opportunities that our Legacy Project will afford. It has been a long journey since 2014, but we are now seeing the new building gradually rising. As a reminder of what is being constructed, the plan below shows the layout:

The red arrow points to the new, level entrance in from Mansfield Road.
The artist’s impression below shows what this new entrance will look like. The new entrance leads into a large area that the architect has referred to as the “cloister”. We have discovered that architects have their own language when it comes to describing what they design!Â

The following pictures were taken on a recent site visit with some representatives from Glasgow Presbytery. Pic 1 shows the view from where the new entrance to the sanctuary will be, and looks south, through the entrance, to the annexe and out to the driveway leading to Mansfield Road.Â
To the right as you enter through the lobby is the kitchen and then a large multipurpose room. Pic 2 shows the multipurpose space, which has a corner window to the right and a large window looking out to Eaglesham Road.
To the left as you enter the annexe are double doors leading into the main hall that can take a full-sized badminton court, shown in Pic 3. There are windows on both sides of the hall and a south facing window. It is difficult to compare sizes with what we had in the old halls because of differences in design, the built in storage, window seats etc but in very broad terms the main hall is around the size of the Fraser Hall and the multipurpose space about half of that. The large square kitchen at twenty-two square metres will be a big improvement on what we had.Â

Straight ahead of you as you enter the lobby is the office which will have a reception desk open to the cloister area. Behind the office will be the vestry.
Insulation for the roof is due to arrive in the next few weeks and following that the building will be made wind and watertight and work will be able to continue on the inside. As far as the outside of the site is concerned you will see that the steps have been put in place from Eaglesham Road and temporary handrails provided on each side. The ground from the front steps of the manse all the way across to the steps of the sanctuary is almost level and this means that those who find the steps difficult will have a reasonably level access via the manse drive. The need for these steps and the levelling the ground in front of the sanctuary is of course that all of the land to the north of the sanctuary, where the old halls sat, is no longer our property and once the care home developer begins their construction work there will be no access to the current drive.
You will also have seen on Sundays that two windows on the south side, the manse side, have been worked on over the last few weeks. These windows are being altered to create the new doors from the annexe into the sanctuary. This has involved removing the stained-glass windows very carefully and then lowering the window all the way down to ground level. Specialist stone masons were employed to do this work and the stained glass was removed by a specialist firm and stored for safekeeping. The stained-glass windows will be replaced above the new doors. On the other side of this sanctuary the local authority required an additional fire exit and so similar work has been done to one of the windows on the northside.
Although it is much less visible than other work on the site, a very great deal of work has been carried out on drainage throughout the site. Those who have been attending Greenbank for many, many years are well aware of the problem with water especially over the winter period. A new system of drains has been laid and those drains that have been retained have been cleaned and relined. It might seem odd to say it but this is just a building. It has certainly occupied a great deal of time and effort over the years, but it is still just a building. Our whole purpose behind the Legacy project was to ensure that there would be a sustainable worshipping congregation serving this community for years to come. The task now is to maximise all the opportunities that our great new facilities will allow. More on that to follow!
